Gallery
Clients
About | Contact
Gallery
Clients
About | Contact
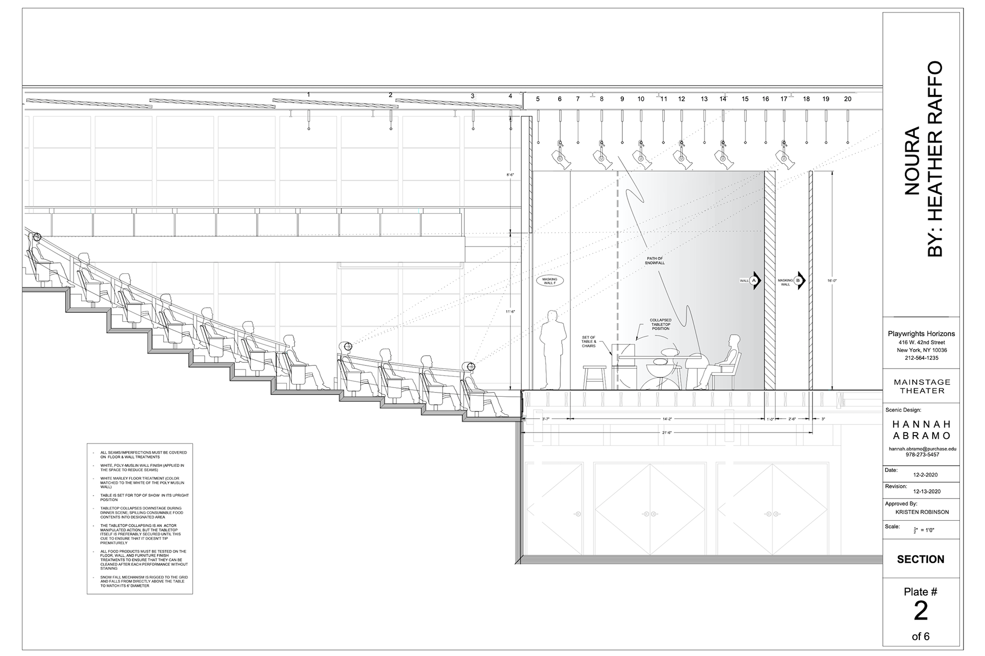
Hannah Abramo
Draftings
Playwright: Heather Raffo
Professor: Kristen Robinson
Scenic Design, Model, Draftings: Hannah Abramo
↑
Back to Top